Now offered at $275,000 with a $10,000 price improvement, 2915 N Anthony Boulevard
Classic Character Meets Modern Comfort at 2915 N Anthony Boulevard, Fort Wayne

Now offered at $275,000 with a $10,000 price improvement, 2915 N Anthony Boulevard presents a rare opportunity to own a beautifully preserved and thoughtfully updated historic home in one of Fort Wayne’s most desirable neighborhoods.
Located in the heart of the 46805 ZIP code and within a national historic district, this impressive three-story residence blends timeless architectural charm with practical modern upgrades, creating a home that is as livable as it is memorable.
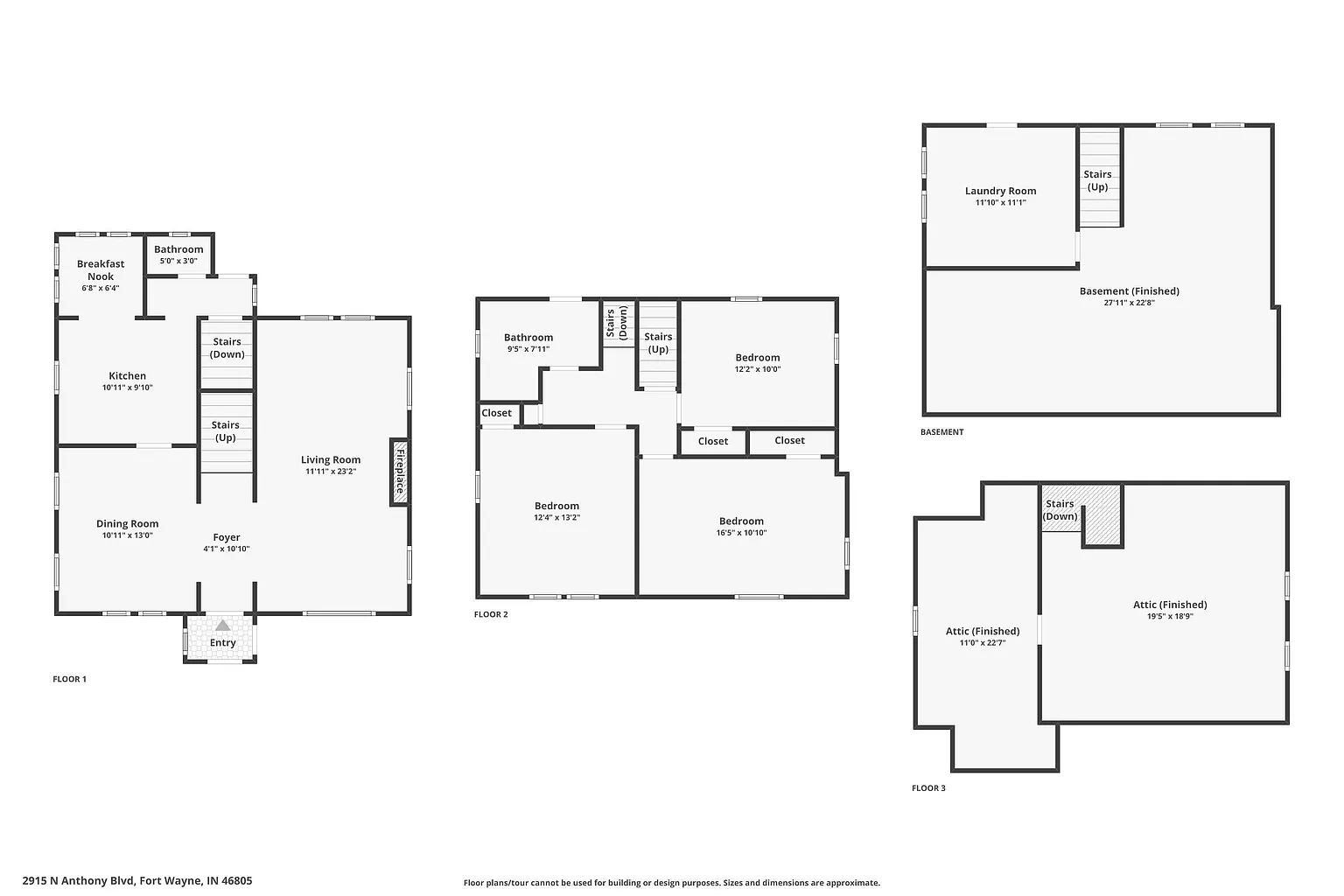
With 4 bedrooms, 1.5 bathrooms, and 2,464 square feet of finished living space, this property offers flexibility, warmth, and character that newer construction simply cannot replicate.

A Welcoming First Impression
From the moment you arrive, 2915 N Anthony Boulevard makes a statement. The classic exterior, mature surroundings, and gated driveway immediately reflect the pride of ownership and historic significance of the home.
Step through the front door into the inviting foyer, where the craftsmanship of a bygone era is on full display. Natural woodwork, gleaming hardwood floors, and elegant crown molding set the tone for the rest of the home, offering a warm and authentic welcome.

Living Spaces Designed for Comfort and Character
The spacious living room is the heart of the home, combining comfort with architectural beauty. A cozy wood-burning fireplace anchors the room, creating the perfect space for relaxing evenings or hosting guests.
Built-in storage with a charming window seat, along with lovely glass details and crown molding, add both functionality and visual interest. Large windows allow natural light to fill the room, highlighting the rich wood tones and craftsmanship throughout.

Flowing seamlessly from the living room is the bright dining area, an ideal setting for family meals, holiday gatherings, or casual entertaining. The layout maintains a sense of openness while still preserving the defined rooms characteristic of historic homes.
A Kitchen That Balances Style and Function
The kitchen has been updated to meet modern needs while respecting the home’s historic charm. It features stainless steel appliances, including a refrigerator, electric range, and dishwasher, making it well-equipped for everyday cooking or entertaining.

Thoughtful design allows the kitchen to feel connected to the dining area, ensuring convenience without sacrificing character.
Second Floor Comfort and Historic Details
The second story of the home offers three large bedrooms, each filled with unique character details. Hardwood floors continue throughout, and generous window placement ensures bright, welcoming spaces. One bedroom includes a cedar-lined closet, a charming and practical historic feature rarely found in modern homes.

Adding to the home’s original functionality is a convenient laundry chute, a nod to the thoughtful design of early 20th-century residences. The second level also includes access to the home’s full bathroom, which blends classic style with everyday comfort.
Finished Third Level for Ultimate Flexibility
One of the standout features of this property is the finished third level, which provides a fourth bedroom along with additional flexible living space. This level is ideal for a home office, guest suite, studio, or private retreat, making it perfect for today’s lifestyle needs.

Whether you work from home, host guests, or simply want extra space to spread out, this level adds exceptional versatility to the home.
Basement Storage and Practical Systems
Below the main living areas, the unfinished basement offers ample storage space, ideal for seasonal items, tools, or hobby equipment. The home is equipped with practical updates that enhance peace of mind, including a 2023 gas water heater, 100-amp electrical service with breakers, and a sump pit.

Extensive Updates and Improvements
This home has benefited from numerous updates over the years, ensuring both comfort and long-term durability:
Furnace replaced in 2016
Stainless steel appliances installed in 2015
New air conditioning system and driveway added in 2024
Oversized detached garage built in 2020
Most vinyl windows replaced
Roof maintenance completed in 2023
Chimney breast repointed in 2025 with flashing redone
Garage door opener and concrete parking areas
These improvements provide reassurance that while the home retains its historic soul, major systems have been thoughtfully maintained and updated.

Outdoor Space and Parking Advantages
Outside, the gated driveway offers privacy and security, with space to relax or entertain in the backyard. The oversized two-car detached garage provides valuable off-street parking and additional storage.
Even more appealing, the homeowners purchased and are including an additional parcel to the west, offering extra space and future potential—an uncommon bonus in this sought-after area.

Parking includes two garage spaces, uncovered spaces, and concrete surfaces, making it ideal for city living with multiple vehicles.
Prime Location in Fort Wayne
Situated in one of Fort Wayne’s most beloved neighborhoods, this home offers unparalleled access to recreation, culture, and everyday conveniences. Nearby attractions include Lakeside Park, Johnny Appleseed Park, Lions Park, the Allen County War Memorial Coliseum, the Rivergreenway trail system, and the Fort Wayne Children’s Zoo.
Shopping and daily essentials are just minutes away, with CVS, Glenbrook Square, Northcrest Shopping Center, Kroger, Walmart Supercenter, Costco, and Lowe’s all nearby.

The area also boasts a vibrant dining scene, including local favorites like BB’s Indian Kitchen, Old Crown Coffee Roasters, Firefly Coffee House, Willie’s Café, Hall’s State Street, Shady Nook, El Azteca, and ACME Bar & Grill, along with familiar national chains such as Starbucks, McDonald’s, and Subway.
Educational and healthcare institutions like Purdue University Fort Wayne and Parkview Hospital Randallia are conveniently close, adding to the home’s appeal.
A Home Ready for Its Next Chapter

Being sold as-is, 2915 N Anthony Boulevard offers an incredible opportunity for buyers seeking a historic home filled with warmth, personality, and modern comfort. With its generous space, extensive updates, prime location, and undeniable charm, this property stands as a true Fort Wayne classic.
FROM ZILLOW